140 John James Audubon Parkway

Amherst, NY

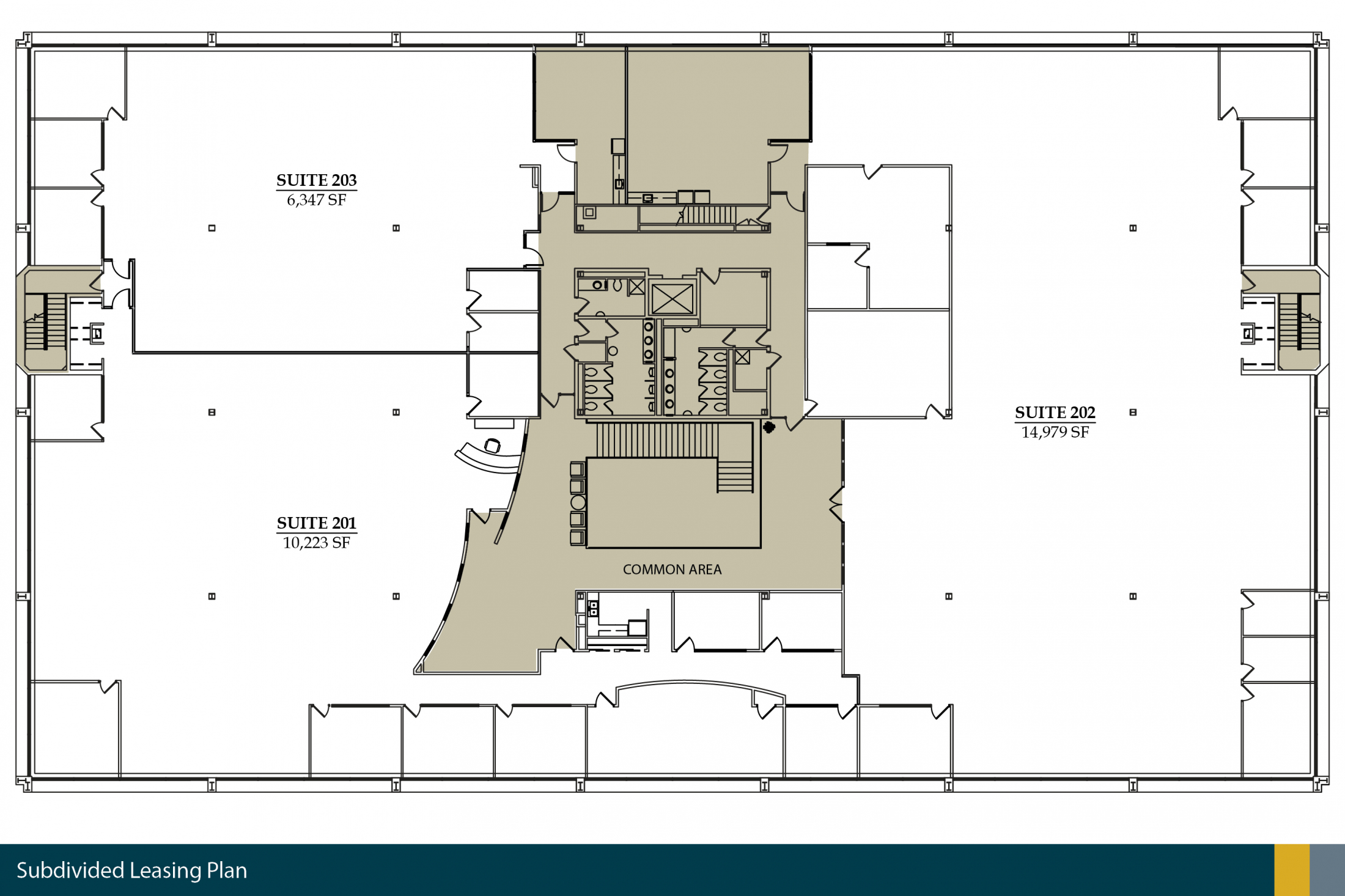
Newly renovated, move-in ready, office space in a parklike setting now available at 140 John James Audubon Parkway. The open floor plans provide for flexible office suites from 6,347 SF to 31,549 SF. 

This property is well positioned between the I-290 and I-990 Expressways providing accessibility to all areas within Western New York.  Tenants benefit from a convenient location in a park like setting adjacent to the Walton Woods Trailway connected to the Amherst Bike Path.

  • 31,549 SF full floor plate available on second floor.
  • Subdivided Suites:
    • Suite 201 | 10,223 SF
    • Suite 202 | 14,979 SF
    • Suite 203 | 6,347 SF
  • Open floor plans.
  • Reasonable rental rate for office and flex space.

 Available Suites

Suite 200 | 31,549 SF

Full Floor Plate

Suite 201 | 10,223 SF

Second Floor

Suite 202 | 14,979 SF

Second Floor

Suite 203 | 6,347 SF

Second Floor

Let our experienced leasing and design professionals show you the positive impact new space can have on your company’s productivity and bottom line.  For more information, please contact Margaret Tuerk at mtuerk@iskalo.com or call 716.633.2096.